賃貸条件
| 図面 | 募集階 | 坪数 | 賃料 @坪単価 |
共益費 @坪単価 |
敷金 | 入居 可能日 |
償却費 | 契約期間 | お気に入り | お問い合わせ |
|---|---|---|---|---|---|---|---|---|---|---|
| 保証金 | 礼金 | 更新料 | ||||||||
|
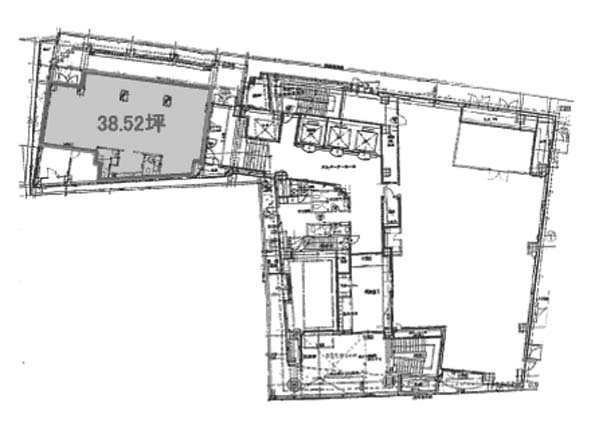
1階 | 38.52坪 | 未定 |
込 |
12ヶ月 | 2026/4/9 | 2年 |
|
||
| - |
別途消費税(保証金・敷金を除く)
物件概要
| ビル名 | KDX新宿ビル |
|---|---|
| 住所 | 新宿区西新宿3-2-7 |
| 構造 | S造・地下SRC、RC造 |
| 規模 | B4/11 |
| 竣工 | 1993/5 |
| 交通 | 新宿線 新宿駅 3分 山手線 新宿駅 8分 中央線(快速) 新宿駅 8分 |
設備詳細
| エレベーター | 3基 |
|---|---|
| 空調 | 個別空調 |
| トイレ | 男女別 |
| 警備 | 有人+機械警備 |
- お問合せ
- 株式会社エスアールテン
〒103-0026 東京都中央区日本橋兜町16-5 TEL / 0120-388-172
東京都知事(2)第91829号
取引形態 媒介

