賃貸条件
別途消費税(保証金・敷金を除く)
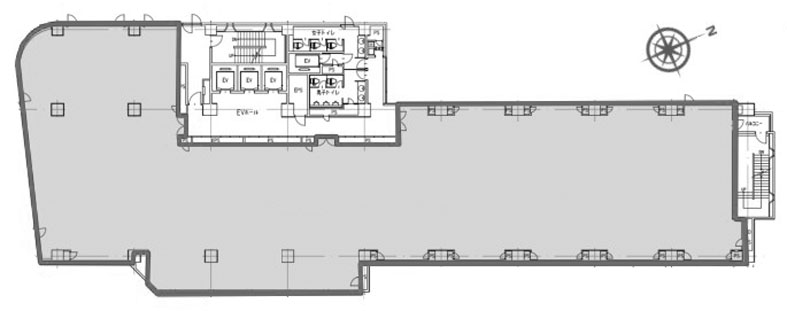
物件概要
| ビル名 | 西新宿大京ビル |
|---|---|
| 住所 | 新宿区西新宿7-21-3 |
| 構造 | SRC造 |
| 規模 | B2/10 |
| 竣工 | 1994/3 |
| 交通 | 山手線 新宿駅 9 分 丸ノ内線 西新宿駅 2分 大江戸線 新宿西口駅 5分 |
設備詳細
| エレベーター | 3基 |
|---|---|
| 空調 | 個別空調 |
| トイレ | 男女別 |
| 警備 | 有人+機械警備 |
- お問合せ
- 株式会社エスアールテン
〒103-0026 東京都中央区日本橋兜町16-5 TEL / 0120-388-172
東京都知事(2)第91829号
取引形態 媒介


