賃貸条件
別途消費税(保証金・敷金を除く)
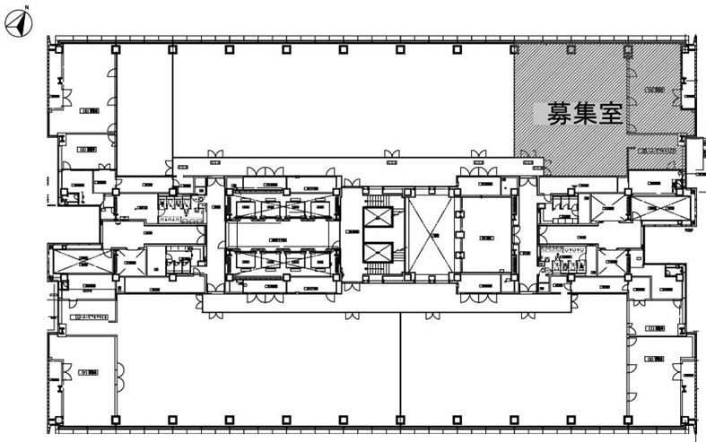
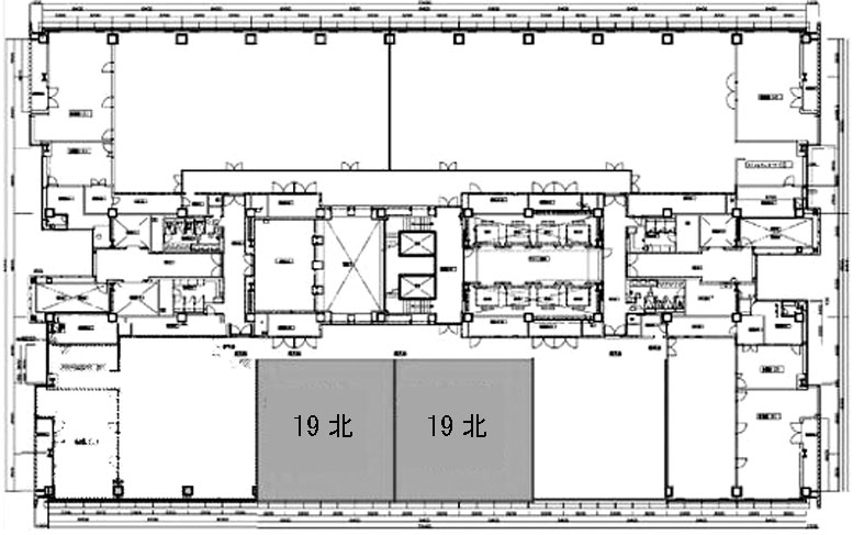
物件概要
| ビル名 | トレードピアお台場 |
|---|---|
| 住所 | 港区台場2-3-1 |
| 構造 | SRC造 |
| 規模 | B2/23 |
| 竣工 | 2001/2 |
| 交通 | ゆりかもめ お台場海浜公園駅 2分 りんかい線 東京テレポート駅 3分 |
設備詳細
| エレベーター | 19基 |
|---|---|
| 空調 | セントラル空調 |
| トイレ | 男女別 |
| 警備 | 有人管理 |
- お問合せ
- 株式会社エスアールテン
〒103-0026 東京都中央区日本橋兜町16-5 TEL / 0120-388-172
東京都知事(2)第91829号
取引形態 媒介










