賃貸条件
| 図面 | 募集階 | 坪数 | 賃料 @坪単価 |
共益費 @坪単価 |
敷金 | 入居 可能日 |
償却費 | 契約期間 | お気に入り | お問い合わせ |
|---|---|---|---|---|---|---|---|---|---|---|
| 保証金 | 礼金 | 更新料 | ||||||||
|
5階 | 18坪 | 19.8万円 @11,000円 |
3.6万円 @2,000円 |
6ヶ月 | 2026/1/下 | 無し | 2年 |
|
|
| - | 1ヶ月 |
別途消費税(保証金・敷金を除く)
物件概要
| ビル名 | 荻原ビル |
|---|---|
| 住所 | 千代田区内神田1-17-5 |
| 構造 | RC造 |
| 規模 | B1/7 |
| 竣工 | 1991/6 |
| 交通 | 中央線(快速) 神田駅 6分 新宿線 小川町駅 4分 丸ノ内線 淡路町駅 4分 |
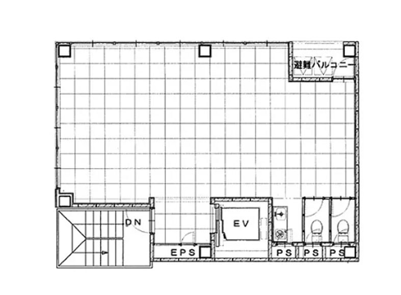
設備詳細
| エレベーター | 1基 |
|---|---|
| 空調 | 個別空調 |
| トイレ | 男女別 |
| 警備 | EV不停止機能付 |
- お問合せ
- 株式会社エスアールテン
〒103-0026 東京都中央区日本橋兜町16-5 TEL / 0120-388-172
東京都知事(2)第91829号
取引形態 媒介


