賃貸条件
別途消費税(保証金・敷金を除く)
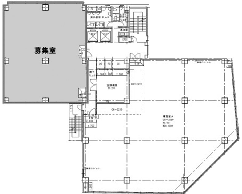
物件概要
| ビル名 | 日幸五反田ビル |
|---|---|
| 住所 | 品川区西五反田2-29-5 |
| 構造 | SRC造 |
| 規模 | B1/8 |
| 竣工 | 1982/7 |
| 交通 | 山手線 五反田駅 5分 浅草線 五反田駅 5分 東急池上線 五反田駅 6分 |
設備詳細
| エレベーター | 2基 |
|---|---|
| 空調 | 個別空調 |
| トイレ | 男女別 |
| 警備 | 有人+機械警備 |
- お問合せ
- PROFOUND株式会社(プロファウンド)
東京都千代田区六番町15-2鳳翔ビル2階 TEL / 03-6261-5278
東京都知事(1)109986号
取引形態 媒介


