賃貸事務所の大型物件特集の賃貸オフィス・賃貸事務所の検索結果:19件
1-19件 / 19件中

- 住所
- 港区麻布十番2-1-2
地図を見る
- 交通
- 大江戸線 麻布十番駅 1分
南北線 麻布十番駅 1分
- 竣工
- 2024/8/31
- 規模
- */9
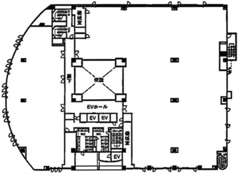
| 階数 | 6~9階 | 坪数 | 102.24坪 |
賃料 @坪単価 | 非公開 @ 非公開 | 共益費 @坪単価 | 6.0万 @587円 |
| 入居可能日 | 即 | 図面 | なし |
※別途消費税
- お気に入り
-
- お問い合わせ
▲このページのTOPへ

- 住所
- 港区六本木3-3-27
地図を見る
- 交通
- 日比谷線 六本木駅 8分
南北線 六本木一丁目駅 4分
- 竣工
- 1991/11
- 規模
- B2/4
| 階数 | 2階 | 坪数 | 102.45坪 |
賃料 @坪単価 | 228.2万 @ 22,272円 | 共益費 @坪単価 | 込 込 |
| 入居可能日 | 相談 | 図面 | 図面を見る |
※別途消費税
- お気に入り
-
- お問い合わせ
▲このページのTOPへ

- 住所
- 港区西麻布3-24-20
地図を見る
- 交通
- 日比谷線 六本木駅 6分
千代田線 乃木坂駅 10分
日比谷線 広尾駅 10分
- 竣工
- 1973/7
- 規模
- B2/9
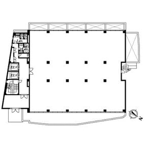
| 階数 | 2階 | 坪数 | 105.89坪 |
賃料 @坪単価 | 非公開 @ 非公開 | 共益費 @坪単価 | 込 込 |
| 入居可能日 | 2026/3/1 | 図面 | 図面を見る |
※別途消費税
- お気に入り
-
- お問い合わせ
▲このページのTOPへ

- 住所
- 港区東麻布1-3-8
地図を見る
- 交通
- 大江戸線 赤羽橋駅 6分
日比谷線 神谷町駅 6分
三田線 芝公園駅 12分
- 竣工
- 1986/9
- 規模
- */10
| 階数 | 2+3階 | 坪数 | 108.62坪 |
賃料 @坪単価 | 271.6万 @ 25,000円 | 共益費 @坪単価 | 込 込 |
| 入居可能日 | 2025/12/15 | 図面 | 図面を見る |
※別途消費税
- お気に入り
-
- お問い合わせ
▲このページのTOPへ

- 住所
- 港区六本木4-2-45
地図を見る
- 交通
- 日比谷線 六本木駅 5分
千代田線 乃木坂駅 12分
南北線 六本木一丁目駅 12分
千代田線 赤坂駅 12分
- 竣工
- 1993/9
- 規模
- B1/4
| 階数 | 2階 | 坪数 | 113.91坪 |
賃料 @坪単価 | 非公開 @ 非公開 | 共益費 @坪単価 | 39.9万 @3,500円 |
| 入居可能日 | 2026/5/1 | 図面 | 図面を見る |
※別途消費税
- お気に入り
-
- お問い合わせ
▲このページのTOPへ

- 住所
- 港区六本木1-9-9
地図を見る
- 交通
- 南北線 六本木一丁目駅 4分
日比谷線 神谷町駅 5分
- 竣工
- 1993/10
- 規模
- B4/20
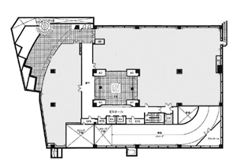
| 階数 | 1階 | 坪数 | 125.1坪 |
賃料 @坪単価 | 非公開 @ 非公開 | 共益費 @坪単価 | 非公開 非公開 |
| 入居可能日 | 2026/1/下 | 図面 | 図面を見る |
※別途消費税
- お気に入り
-
- お問い合わせ
| 階数 | 17階 | 坪数 | 189.4坪 |
賃料 @坪単価 | 非公開 @ 非公開 | 共益費 @坪単価 | 非公開 非公開 |
| 入居可能日 | 即 | 図面 | 図面を見る |
※別途消費税
- お気に入り
-
- お問い合わせ
▲このページのTOPへ

- 住所
- 港区六本木2-4-5
地図を見る
- 交通
- 南北線 六本木一丁目駅 3分
日比谷線 六本木駅 7分
銀座線 溜池山王駅 6分
- 竣工
- 1975/9
- 規模
- B1/9
| 階数 | 5階 | 坪数 | 143.69坪 |
賃料 @坪単価 | 非公開 @ 非公開 | 共益費 @坪単価 | 込 込 |
| 入居可能日 | 即 | 図面 | 図面を見る |
※別途消費税
- お気に入り
-
- お問い合わせ
▲このページのTOPへ

- 住所
- 港区六本木7-15-7
地図を見る
- 交通
- 日比谷線 六本木駅 1分
大江戸線 六本木駅 1分
千代田線 乃木坂駅 10分
- 竣工
- 1978/7
- 規模
- B1/9
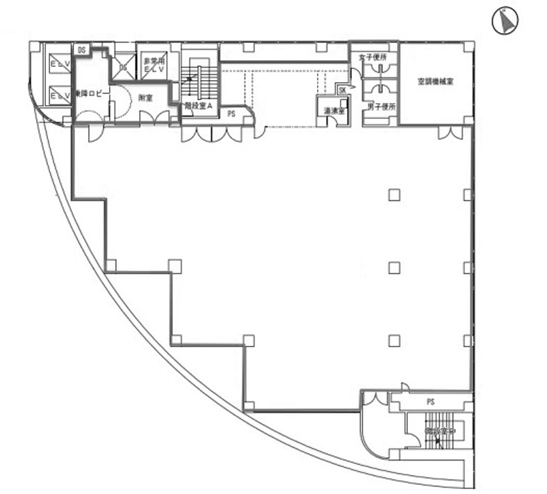
| 階数 | 401階 | 坪数 | 149.69坪 |
賃料 @坪単価 | 非公開 @ 非公開 | 共益費 @坪単価 | 込 込 |
| 入居可能日 | 2026/6/1 | 図面 | 図面を見る |
※別途消費税
- お気に入り
-
- お問い合わせ
▲このページのTOPへ

- 住所
- 港区西麻布2-24-11
地図を見る
- 交通
- 千代田線 乃木坂駅 10分
日比谷線 六本木駅 12分
日比谷線 広尾駅 15分
- 竣工
- 1990/3
- 規模
- B1/4
| 階数 | 1階 | 坪数 | 179.51坪 |
賃料 @坪単価 | 非公開 @ 非公開 | 共益費 @坪単価 | 込 込 |
| 入居可能日 | 相談 | 図面 | 図面を見る |
※別途消費税
- お気に入り
-
- お問い合わせ
▲このページのTOPへ

- 住所
- 港区麻布十番1-10-10
地図を見る
- 交通
- 南北線 麻布十番駅 1分
大江戸線 麻布十番駅 1分
- 竣工
- 1990/7
- 規模
- B4/11
| 階数 | 6階 | 坪数 | 187.39坪 |
賃料 @坪単価 | 非公開 @ 非公開 | 共益費 @坪単価 | 84.3万 @4,500円 |
| 入居可能日 | 即 | 図面 | 図面を見る |
※別途消費税
- お気に入り
-
- お問い合わせ
▲このページのTOPへ

- 住所
- 港区東麻布1-9-15
地図を見る
- 交通
- 大江戸線 赤羽橋駅 5分
日比谷線 神谷町駅 8分
三田線 芝公園駅 11分
- 竣工
- 1989/10
- 規模
- B1/8
| 階数 | 4階 | 坪数 | 209.78坪 |
賃料 @坪単価 | 非公開 @ 非公開 | 共益費 @坪単価 | 非公開 非公開 |
| 入居可能日 | 2025/12/1 | 図面 | 図面を見る |
※別途消費税
- お気に入り
-
- お問い合わせ
▲このページのTOPへ

- 住所
- 港区六本木6-3-1
地図を見る
- 交通
- 日比谷線 六本木駅 2分
大江戸線 六本木駅 5分
千代田線 乃木坂駅 9分
- 竣工
- 2011/3
- 規模
- B1/10
| 階数 | 4階 | 坪数 | 216.7坪 |
賃料 @坪単価 | 非公開 @ 非公開 | 共益費 @坪単価 | 非公開 非公開 |
| 入居可能日 | 2026/夏 | 図面 | 図面を見る |
※別途消費税
- お気に入り
-
- お問い合わせ
▲このページのTOPへ

- 住所
- 港区六本木6-2-31
地図を見る
- 交通
- 日比谷線 六本木駅 0分
大江戸線 六本木駅 3分
- 竣工
- 1971/1
- 規模
- B4/18
| 階数 | 15階 | 坪数 | 223.8坪 |
賃料 @坪単価 | 非公開 @ 非公開 | 共益費 @坪単価 | 非公開 非公開 |
| 入居可能日 | 2025/11/中 | 図面 | 図面を見る |
※別途消費税
- お気に入り
-
- お問い合わせ
▲このページのTOPへ

- 住所
- 港区六本木7-14-23
地図を見る
- 交通
- 日比谷線 六本木駅 1分
千代田線 乃木坂駅 6分
南北線 六本木一丁目駅 10分
- 竣工
- 2009/5
- 規模
- B2/6
| 階数 | 4階 | 坪数 | 250.5坪 |
賃料 @坪単価 | 非公開 @ 非公開 | 共益費 @坪単価 | 非公開 非公開 |
| 入居可能日 | 2026/7/1 | 図面 | 図面を見る |
※別途消費税
- お気に入り
-
- お問い合わせ
| 階数 | 5階 | 坪数 | 206.73坪 |
賃料 @坪単価 | 非公開 @ 非公開 | 共益費 @坪単価 | 非公開 非公開 |
| 入居可能日 | 2026/7/1 | 図面 | 図面を見る |
※別途消費税
- お気に入り
-
- お問い合わせ
▲このページのTOPへ

- 住所
- 港区南麻布3-20-1
地図を見る
- 交通
- 南北線 白金高輪駅 9分
三田線 白金高輪駅 9分
- 竣工
- 2009/9
- 規模
- B1/6
| 階数 | 3階 | 坪数 | 263.57坪 |
賃料 @坪単価 | 非公開 @ 非公開 | 共益費 @坪単価 | 105.4万 @4,000円 |
| 入居可能日 | 即 | 図面 | 図面を見る |
※別途消費税
- お気に入り
-
- お問い合わせ
▲このページのTOPへ

- 住所
- 港区六本木1-9-10
地図を見る
- 交通
- 南北線 六本木一丁目駅 5分
日比谷線 神谷町駅 4分
- 竣工
- 2012/8
- 規模
- B4/47
| 階数 | 34階 | 坪数 | 328.2坪 |
賃料 @坪単価 | 非公開 @ 非公開 | 共益費 @坪単価 | 非公開 非公開 |
| 入居可能日 | 2027/3/上 | 図面 | 図面を見る |
※別途消費税
- お気に入り
-
- お問い合わせ
| 階数 | 35階 | 坪数 | 469.5坪 |
賃料 @坪単価 | 非公開 @ 非公開 | 共益費 @坪単価 | 非公開 非公開 |
| 入居可能日 | 即 | 図面 | 図面を見る |
※別途消費税
- お気に入り
-
- お問い合わせ
▲このページのTOPへ

- 住所
- 港区六本木3-16-35
地図を見る
- 交通
- 南北線 六本木一丁目駅 6分
日比谷線 六本木駅 7分
大江戸線 六本木駅 7分
- 竣工
- 1994/3
- 規模
- B2/7
| 階数 | 3階 | 坪数 | 427.92坪 |
賃料 @坪単価 | 非公開 @ 非公開 | 共益費 @坪単価 | 192.6万 @4,500円 |
| 入居可能日 | 即 | 図面 | 図面を見る |
※別途消費税
- お気に入り
-
- お問い合わせ
| 階数 | 4A階 | 坪数 | 124.33坪 |
賃料 @坪単価 | 非公開 @ 非公開 | 共益費 @坪単価 | 55.9万 @4,500円 |
| 入居可能日 | 即 | 図面 | 図面を見る |
※別途消費税
- お気に入り
-
- お問い合わせ
▲このページのTOPへ

- 住所
- 港区六本木6-10-1
地図を見る
- 交通
- 日比谷線 六本木駅 2分
大江戸線 六本木駅 4分
南北線 麻布十番駅 7分
大江戸線 麻布十番駅 7分
千代田線 乃木坂駅 8分
- 竣工
- 2003/3
- 規模
- B6/54
| 階数 | 20階 | 坪数 | 513.8坪 |
賃料 @坪単価 | 非公開 @ 非公開 | 共益費 @坪単価 | 非公開 非公開 |
| 入居可能日 | 2025/11/上 | 図面 | 図面を見る |
※別途消費税
- お気に入り
-
- お問い合わせ
▲このページのTOPへ