賃貸条件
| 図面 | 募集階 | 坪数 | 賃料 @坪単価 |
共益費 @坪単価 |
敷金 | 入居 可能日 |
償却費 | 契約期間 | お気に入り | お問い合わせ |
|---|---|---|---|---|---|---|---|---|---|---|
| 保証金 | 礼金 | 更新料 | ||||||||
|
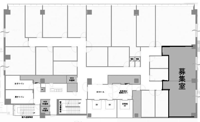
408階 | 13.08坪 | 84.0万円 @64,221円 |
込 |
- | 即 |
|
|||
| - | ||||||||||
|
515+518階 | 23.45坪 | 141.0万円 @60,128円 |
込 |
- | 即 |
|
|||
| - |
別途消費税(保証金・敷金を除く)
物件概要
| ビル名 | PMO EX日本橋茅場町 |
|---|---|
| 住所 | 中央区日本橋茅場町2-12-10 |
| 構造 | S造 |
| 規模 | B1/12 |
| 竣工 | 2022/7 |
| 交通 | 日比谷線 茅場町駅 1分 日比谷線 八丁堀駅 4分 浅草線 日本橋駅 8分 |
設備詳細
| エレベーター | 3基 |
|---|---|
| 空調 | 個別空調 |
| トイレ | 男女別 |
| 警備 | 機械警備 |
- お問合せ
- 大光ビルサービス株式会社
東京都中央区銀座2-11-2 TEL / 03-6226-5689
宅地建物取引業免許番号 東京都知事(2)第91550号
取引形態 媒介



