賃貸条件
別途消費税(保証金・敷金を除く)
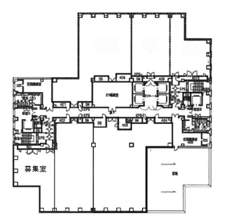
物件概要
| ビル名 | 聖路加タワー |
|---|---|
| 住所 | 中央区明石町8-1 |
| 構造 | RC・SRC造 |
| 規模 | B4/51 |
| 竣工 | 1994/4 |
| 交通 | 日比谷線 築地駅 5分 有楽町線 新富町駅 8分 京葉線 八丁堀駅 11分 |
設備詳細
| エレベーター | 22基 |
|---|---|
| 空調 | セントラル空調 |
| トイレ | 男女別 |
| 警備 | 有人+機械警備 |
- お問合せ
- 大光ビルサービス株式会社
東京都中央区銀座2-11-2 TEL / 03-6226-5689
宅地建物取引業免許番号 東京都知事(2)第91550号
取引形態 媒介








