賃貸条件
別途消費税(保証金・敷金を除く)
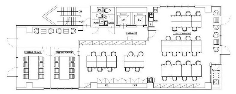
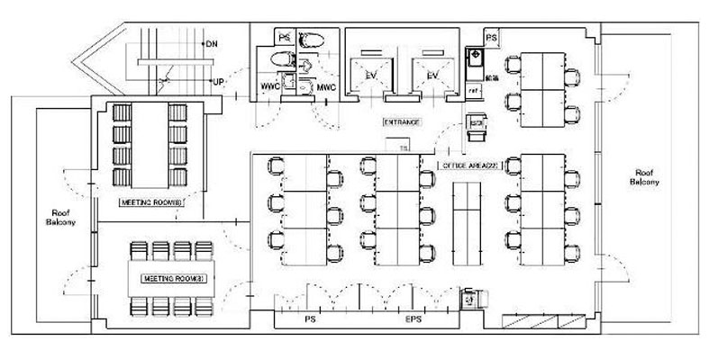
物件概要
| ビル名 | 北大手町スクエア |
|---|---|
| 住所 | 千代田区内神田1-5-12 |
| 構造 | SRC造 |
| 規模 | B1/8 |
| 竣工 | 1997/4 |
| 交通 | 丸ノ内線 大手町駅 5分 山手線 神田駅 5分 半蔵門線 大手町駅 5分 |
設備詳細
| エレベーター | 2基 |
|---|---|
| 空調 | 個別空調 |
| トイレ | 男女別 |
| 警備 | 機械警備+EV不停止 |
- お問合せ
- 大光ビルサービス株式会社
東京都中央区銀座2-11-2 TEL / 03-6226-5689
宅地建物取引業免許番号 東京都知事(2)第91550号
取引形態 媒介




