賃貸条件
別途消費税(保証金・敷金を除く)
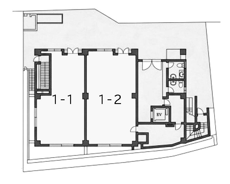
物件概要
| ビル名 | 豊匯ビル |
|---|---|
| 住所 | 渋谷区神宮前5-42-14 |
| 構造 | RC造 |
| 規模 | B1/5 |
| 竣工 | 2025/7 |
| 交通 | 銀座線 表参道駅 7分 千代田線 明治神宮前駅 10分 山手線 原宿駅 12分 |
設備詳細
| エレベーター | 1基 |
|---|---|
| 空調 | - |
| トイレ | 男女別 |
| 警備 | 機械警備 |
- お問合せ
- 大光ビルサービス株式会社
東京都中央区銀座2-11-2 TEL / 03-6226-5689
宅地建物取引業免許番号 東京都知事(2)第91550号
取引形態 媒介





