クロスオフィス三田 No.25281

賃貸条件

図面 募集階 坪数 賃料
@坪単価
共益費
@坪単価
敷金 入居
可能日
償却費 契約期間 お気に入り お問い合わせ
保証金 礼金 更新料
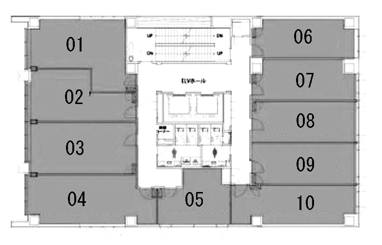
ビル図面:クリックで拡大表示

407~408階 17.38坪 未定

- 無し 定期借家(1~2年) お気に入りに追加
- 無し
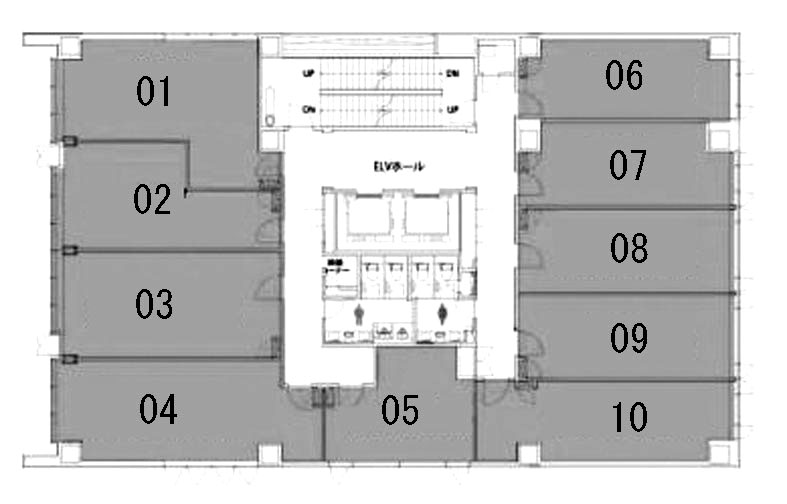
ビル図面:クリックで拡大表示

506~507階 17.38坪 未定

- 2026/3/中 無し お気に入りに追加
- 無し
ビル図面:クリックで拡大表示

603~604階 24.05坪 未定

- 2026/2/上 無し お気に入りに追加
- 無し
ビル図面:クリックで拡大表示

610階 10.33坪 未定

- 無し 定期借家(1~2年) お気に入りに追加
- 無し
ビル図面:クリックで拡大表示

801階 13.26坪 未定

- 無し 定期借家(1~2年) お気に入りに追加
- 無し
ビル図面:クリックで拡大表示

901階 13.26坪 未定

- 無し 定期借家(1~2年) お気に入りに追加
- 無し

別途消費税(保証金・敷金を除く)

物件概要

ビル名 クロスオフィス三田
住所 港区芝5-29-20
構造 S造
規模 B1/9
竣工 2014/4
交通 三田線 三田駅 3分
山手線 田町駅 5分

設備詳細

エレベーター 2基
空調 個別空調
トイレ 男女別
警備 機械警備
お問合せ
大光ビルサービス株式会社
東京都中央区銀座2-11-2 TEL / 03-6226-5689
宅地建物取引業免許番号 東京都知事(2)第91550号
取引形態 媒介
閉じる
物件を見学したい、賃料情報など
物件のお問い合わせ
お電話でのお問い合わせ 03-6226-5689
物件の内見、賃料確認など (原則1時間以内に対応)
事務所をお探しの方 ご希望条件をご登録頂ければ
お客様にピッタリの物件をご紹介させて頂きます。