賃貸条件
| 図面 | 募集階 | 坪数 | 賃料 @坪単価 |
共益費 @坪単価 |
敷金 | 入居 可能日 |
償却費 | 契約期間 | お気に入り | お問い合わせ |
|---|---|---|---|---|---|---|---|---|---|---|
| 保証金 | 礼金 | 更新料 | ||||||||
|
1~4階 | 77.8坪 | 290.0万円 @37,275円 |
込 |
- | 相談 | 1ヶ月 | 3年 |
|
|
| 6ヶ月 | 1ヶ月 | 1ヶ月 | ||||||||
|
一棟階 | 30.57坪 | 101.8万円 @33,300円 |
込 |
- | 相談 | 1ヶ月 | 3年 |
|
|
| 6ヶ月 | 1ヶ月 | 1ヶ月 |
別途消費税(保証金・敷金を除く)
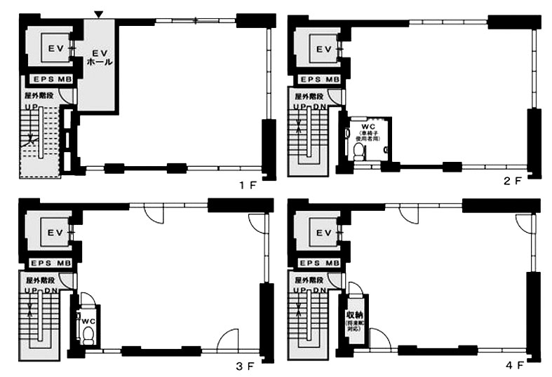
物件概要
| ビル名 | ESCALIER 神楽坂 |
|---|---|
| 住所 | 新宿区西五軒町12-10 |
| 構造 | RC造 |
| 規模 | */5 |
| 竣工 | 2023/2 |
| 交通 | 有楽町線 江戸川橋駅 5分 東西線 神楽坂駅 9分 中央・総武線 飯田橋駅 13分 |
設備詳細
| エレベーター | 1基 |
|---|---|
| 空調 | - |
| トイレ | 男女共同 |
| 警備 | - |
- お問合せ
- 大光ビルサービス株式会社
東京都中央区銀座2-11-2 TEL / 03-6226-5689
宅地建物取引業免許番号 東京都知事(2)第91550号
取引形態 媒介



