賃貸条件
別途消費税(保証金・敷金を除く)
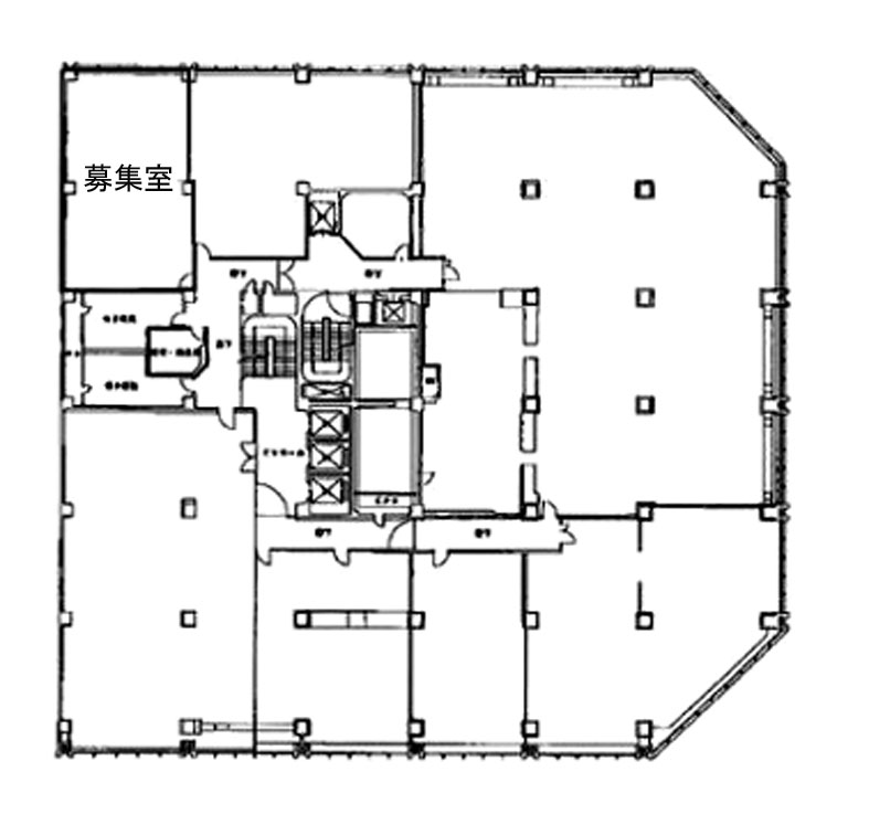
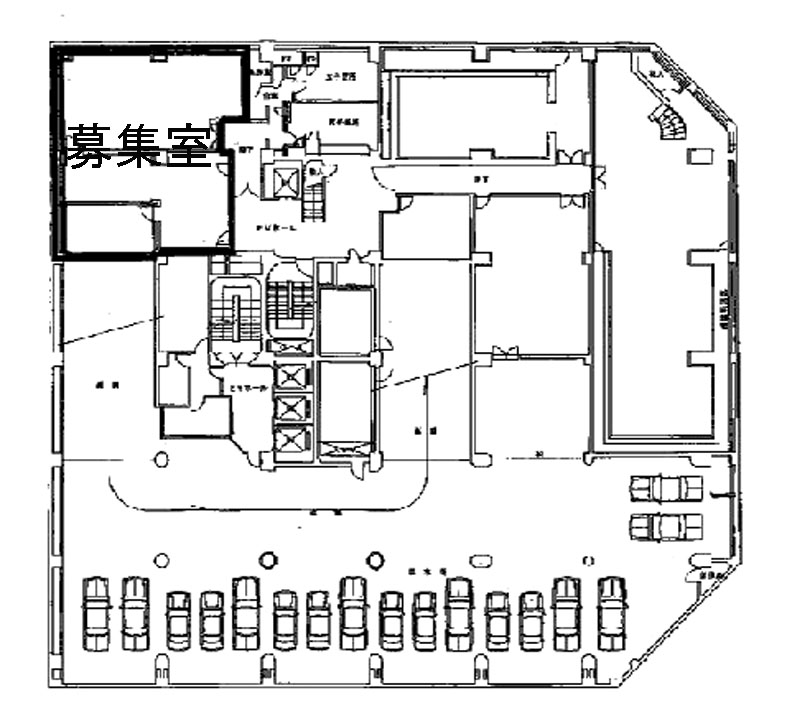
物件概要
| ビル名 | 朝日ビルヂング |
|---|---|
| 住所 | 中央区日本橋3-12-2 |
| 構造 | SRO造 |
| 規模 | B1/9 |
| 竣工 | 1964/2 |
| 交通 | 銀座線 日本橋駅 6分 山手線 東京駅 8分 浅草線 日本橋駅 3分 |
設備詳細
| エレベーター | 4基 |
|---|---|
| 空調 | セントラル空調+個別併用 |
| トイレ | 男女別 |
| 警備 | 有人管理 |
- お問合せ
- 大光ビルサービス株式会社
東京都中央区銀座2-11-2 TEL / 03-6226-5689
宅地建物取引業免許番号 東京都知事(2)第91550号
取引形態 媒介





