賃貸条件
別途消費税(保証金・敷金を除く)
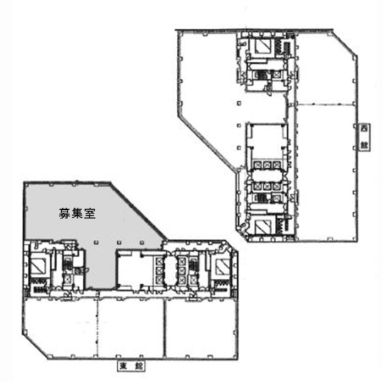
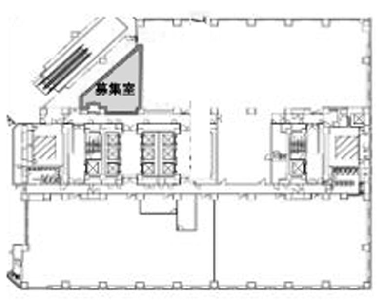
物件概要
| ビル名 | ソリッドスクエア |
|---|---|
| 住所 | 川崎市幸区堀川町580 |
| 構造 | SRC造 |
| 規模 | B2/24 |
| 竣工 | 1995 |
| 交通 | 京急本線 川崎駅 3分 京浜東北線 川崎駅 5分 |
設備詳細
| エレベーター | 16基 |
|---|---|
| 空調 | セントラル空調 |
| トイレ | 男女別 |
| 警備 | 機械警備 |
- お問合せ
- センターゲート株式会社
東京都港区虎ノ門1-17-1 虎ノ門ヒルズビジネスタワー15階 TEL / 03-6807-5924
東京都知事(1)第111744号
取引形態 媒介











