賃貸条件
別途消費税(保証金・敷金を除く)
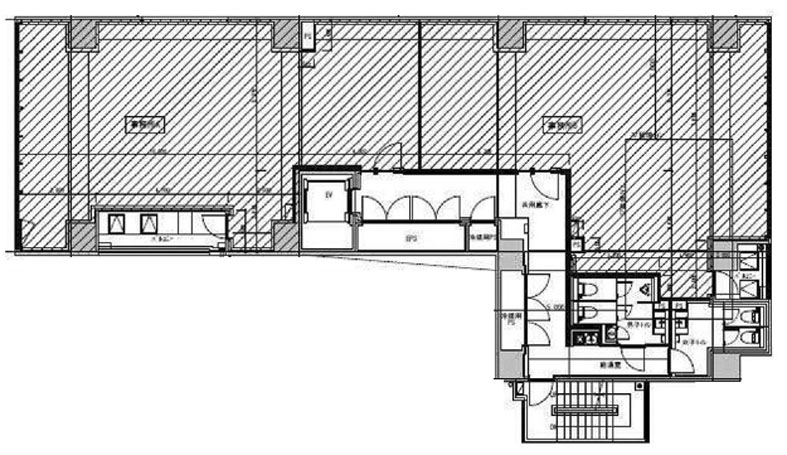
物件概要
| ビル名 | 第二厚生館ビル |
|---|---|
| 住所 | 中央区銀座3-14-15 |
| 構造 | RC造 |
| 規模 | */9 |
| 竣工 | 2025/12 |
| 交通 | 浅草線 東銀座駅 2分 日比谷線 東銀座駅 2分 日比谷線 築地駅 5分 銀座線 銀座駅 5分 |
設備詳細
| エレベーター | 1基 |
|---|---|
| 空調 | 個別空調 |
| トイレ | 男女別 |
| 警備 | 機械警備 |
- お問合せ
- センターゲート株式会社
東京都港区虎ノ門1-17-1 虎ノ門ヒルズビジネスタワー15階 TEL / 03-6807-5924
東京都知事(1)第111744号
取引形態 媒介




















