賃貸条件
別途消費税(保証金・敷金を除く)
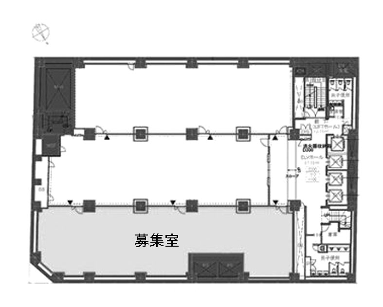
物件概要
| ビル名 | 日本生命東八重洲ビル |
|---|---|
| 住所 | 中央区八丁堀2-6-1 |
| 構造 | SRC造 |
| 規模 | B5/9 |
| 竣工 | 1964 |
| 交通 | 日比谷線 八丁堀駅 3分 浅草線 日本橋駅 6分 東西線 茅場町駅 5分 |
設備詳細
| エレベーター | 4基 |
|---|---|
| 空調 | セントラル空調+個別併用 |
| トイレ | 男女別 |
| 警備 | 有人+機械警備 |
- お問合せ
- センターゲート株式会社
東京都港区虎ノ門1-17-1 虎ノ門ヒルズビジネスタワー15階 TEL / 03-6807-5924
東京都知事(1)第111744号
取引形態 媒介












