賃貸条件
| 図面 | 募集階 | 坪数 | 賃料 @坪単価 |
共益費 @坪単価 |
敷金 | 入居 可能日 |
償却費 | 契約期間 | お気に入り | お問い合わせ |
|---|---|---|---|---|---|---|---|---|---|---|
| 保証金 | 礼金 | 更新料 | ||||||||
|
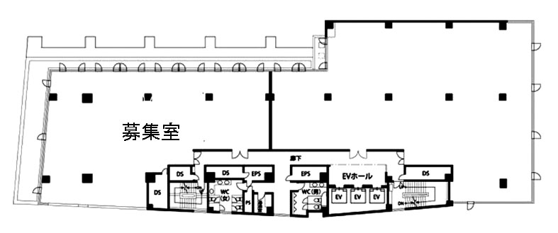
802階 | 99.23坪 | 未定 |
込 |
12ヶ月 | 即 | 無し | 定期借家(3年) |
|
|
| - | 無し | |||||||||
|
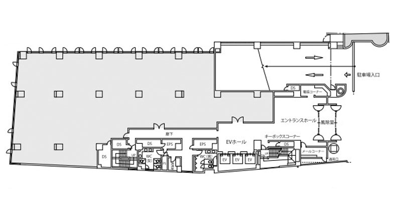
1階 | 186.48坪 | 未定 |
込 |
12ヶ月 | 2026/4/1 | 無し | 定期借家(3年) |
|
|
| - | 無し |
別途消費税(保証金・敷金を除く)
物件概要
| ビル名 | 東急不動産恵比寿ビル |
|---|---|
| 住所 | 渋谷区恵比寿1-18-18 |
| 構造 | SRC造 |
| 規模 | B1/9 |
| 竣工 | 1993/3 |
| 交通 | 山手線 恵比寿駅 4分 日比谷線 恵比寿駅 6分 |
設備詳細
| エレベーター | 3基 |
|---|---|
| 空調 | 個別空調 |
| トイレ | 男女別 |
| 警備 | 機械警備 |
- お問合せ
- センターゲート株式会社
東京都港区虎ノ門1-17-1 虎ノ門ヒルズビジネスタワー15階 TEL / 03-6807-5924
東京都知事(1)第111744号
取引形態 媒介


