賃貸条件
別途消費税(保証金・敷金を除く)
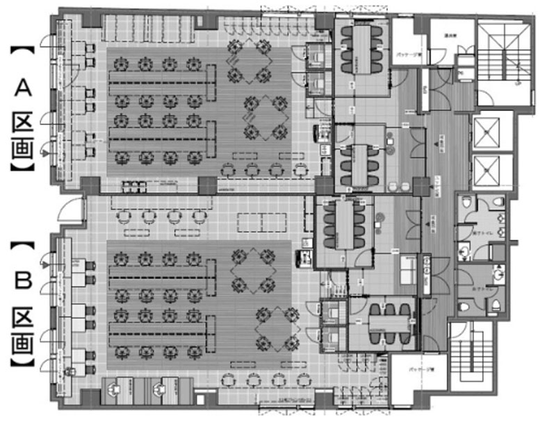
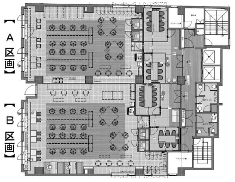
物件概要
| ビル名 | 平河町フロントビル |
|---|---|
| 住所 | 千代田区平河町1-3-13 |
| 構造 | SRC造 |
| 規模 | B1/8 |
| 竣工 | 1988/3 |
| 交通 | 半蔵門線 半蔵門駅 3分 有楽町線 麹町駅 3分 南北線 永田町駅 7分 |
設備詳細
| エレベーター | 2基 |
|---|---|
| 空調 | 個別空調 |
| トイレ | 男女別 |
| 警備 | 機械警備 |
- お問合せ
- センターゲート株式会社
東京都港区虎ノ門1-17-1 虎ノ門ヒルズビジネスタワー15階 TEL / 03-6807-5924
東京都知事(1)第111744号
取引形態 媒介



