賃貸条件
| 図面 | 募集階 | 坪数 | 賃料 @坪単価 |
共益費 @坪単価 |
敷金 | 入居 可能日 |
償却費 | 契約期間 | お気に入り | お問い合わせ |
|---|---|---|---|---|---|---|---|---|---|---|
| 保証金 | 礼金 | 更新料 | ||||||||
|
101階 | 50.48坪 | 未定 |
込 |
6ヶ月 | 即 | 無し | 2年 |
|
|
| - | 無し | 無し | ||||||||
|
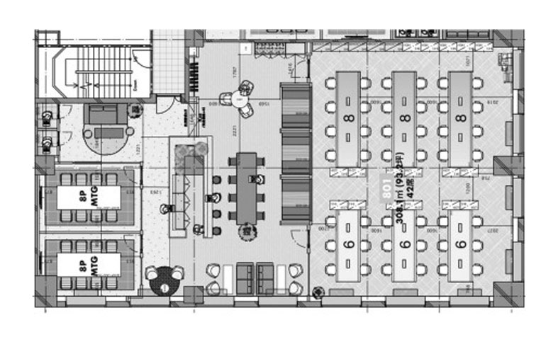
801階 | 93.2坪 | 未定 |
込 |
6ヶ月 | 2026/4/1 | 無し | 2年 |
|
|
| - | 無し | 無し |
別途消費税(保証金・敷金を除く)
物件概要
| ビル名 | フロンティアグラン西新宿 |
|---|---|
| 住所 | 新宿区西新宿3-7-30 |
| 構造 | S造+SRC造 |
| 規模 | B3/12 |
| 竣工 | 1990/4 |
| 交通 | 京王線 初台駅 10分 山手線 新宿駅 15分 大江戸線 都庁前駅 9分 |
設備詳細
| エレベーター | 3基 |
|---|---|
| 空調 | セントラル空調 |
| トイレ | 男女別 |
| 警備 | 有人+機械警備 |
- お問合せ
- 株式会社Base
東京都墨田区江東橋4-26-9 VORT錦糸町駅前 5階 TEL / 03-5825-4527
宅地建物取引業免許番号 東京都知事(2)第101379号
取引形態 媒介



