賃料 坪10000円以下特集の賃貸オフィス・賃貸事務所の検索結果:4件
1-4件 / 4件中

- 住所
- 中央区日本橋浜町3-45-3
地図を見る
- 交通
- 新宿線 浜町駅 5分
半蔵門線 水天宮前駅 8分
- 竣工
- 1989
- 規模
- */7
※別途消費税
| 階数 | 4階 | 坪数 | 20.62坪 |
賃料 @坪単価 | 19.0万 @ 9,215円 | 共益費 @坪単価 | 込 込 |
| 入居可能日 | 即 | 図面 | 図面を見る |
※別途消費税
- お気に入り
-
- お問い合わせ
▲このページのTOPへ
林ビルNo.15838

- 住所
- 中央区日本橋馬喰町1-5-10
地図を見る
- 交通
- 新宿線 馬喰横山駅 1分
総武本線 馬喰町駅 1分
浅草線 東日本橋駅 3分
- 竣工
- 1974/7
- 規模
- B1/8
※別途消費税
| 階数 | 5階 | 坪数 | 29.43坪 |
賃料 @坪単価 | 29.4万 @ 10,000円 | 共益費 @坪単価 | 込 込 |
| 入居可能日 | 即 | 図面 | 図面を見る |
※別途消費税
- お気に入り
-
- お問い合わせ
▲このページのTOPへ

- 住所
- 中央区日本橋横山町7-1
地図を見る
- 交通
- 新宿線 馬喰横山駅 2分
浅草線 東日本橋駅 2分
総武線(快速) 馬喰町駅 2分
- 竣工
- 1954/9
- 規模
- */5
※別途消費税
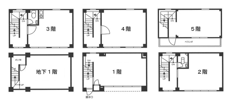
| 階数 | 一棟階 | 坪数 | 51.5坪 |
賃料 @坪単価 | 50.0万 @ 9,709円 | 共益費 @坪単価 | 込 込 |
| 入居可能日 | 相談 | 図面 | 図面を見る |
※別途消費税
- お気に入り
-
- お問い合わせ
▲このページのTOPへ

- 住所
- 中央区日本橋横山町6-16
地図を見る
- 交通
- 新宿線 馬喰横山駅 1分
総武線(快速) 馬喰町駅 2分
浅草線 東日本橋駅 3分
日比谷線 小伝馬町駅 7分
- 竣工
- 1963/10
- 規模
- */6
※別途消費税
| 階数 | 一棟階 | 坪数 | 141.8坪 |
賃料 @坪単価 | 120.0万 @ 8,463円 | 共益費 @坪単価 | 非公開 非公開 |
| 入居可能日 | 即 | 図面 | 図面を見る |
※別途消費税
- お気に入り
-
- お問い合わせ
▲このページのTOPへ