賃貸条件
別途消費税(保証金・敷金を除く)
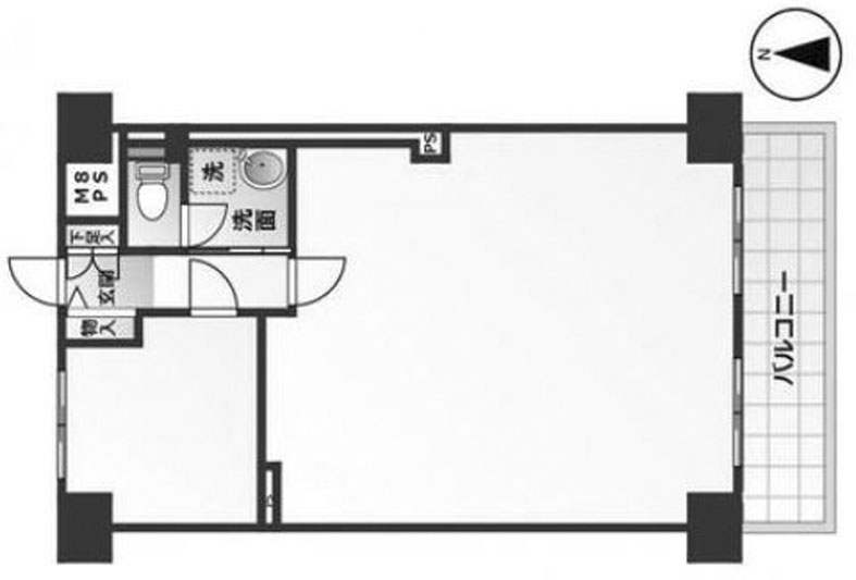
物件概要
| ビル名 | シティハウスノヴァ |
|---|---|
| 住所 | 豊島区池袋2-67-1 |
| 構造 | SRC造 |
| 規模 | */12 |
| 竣工 | 1984/11 |
| 交通 | 山手線 池袋駅 6分 有楽町線 池袋駅 6分 副都心線 池袋駅 7分 |
設備詳細
| エレベーター | 有り |
|---|---|
| 空調 | 個別空調 |
| トイレ | 男女共同 |
| 警備 | 機械警備 |
- お問合せ
- (株)スペースエージェント
東京都中央区銀座3-11-5 第2中山ビル6階 TEL / 03-6825-5886
宅地建物取引業免許番号 東京都知事(4)第83922号
取引形態 媒介
閉じる
- 物件を見学したい、賃料情報など
物件のお問い合わせ - お電話でのお問い合わせ 03-6825-5886
-
物件の内見、賃料確認など
(原則1時間以内に対応)
- 事務所をお探しの方
ご希望条件をご登録頂ければ
お客様にピッタリの物件をご紹介させて頂きます。



