賃貸条件
別途消費税(保証金・敷金を除く)
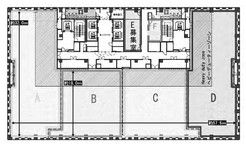
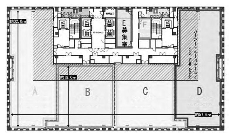
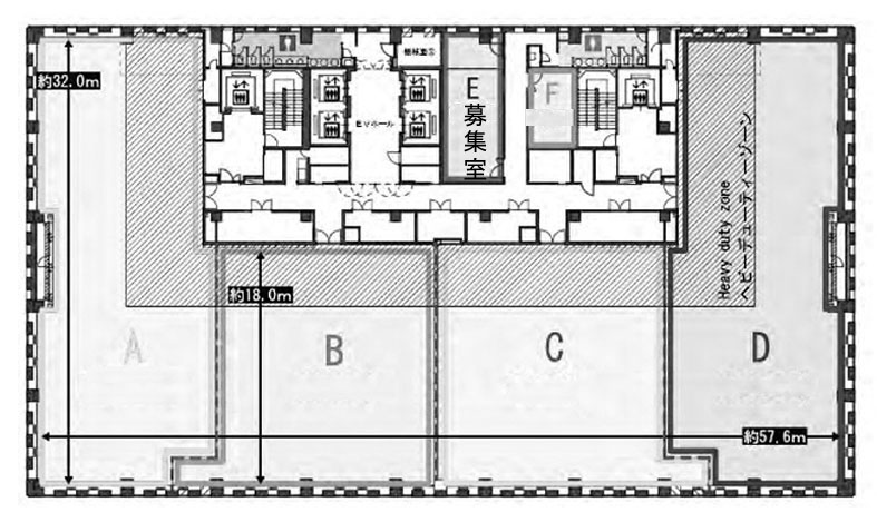
物件概要
| ビル名 | GRC品川イノベーションパーク |
|---|---|
| 住所 | 品川区東品川4-12-2 |
| 構造 | 地上:S造、地下SRC造(一部RC造) |
| 規模 | B1/18 |
| 竣工 | 2004/8 |
| 交通 | りんかい線 品川シーサイド駅 1分 京急本線 青物横丁駅 7分 |
設備詳細
| エレベーター | 低層用5基・高層用4基 |
|---|---|
| 空調 | セントラル空調 |
| トイレ | 男女別 |
| 警備 | 有人+機械警備 |
- お問合せ
- (株)スペースエージェント
東京都中央区銀座3-11-5 第2中山ビル6階 TEL / 03-6825-5886
宅地建物取引業免許番号 東京都知事(4)第83922号
取引形態 媒介
閉じる
- 物件を見学したい、賃料情報など
物件のお問い合わせ - お電話でのお問い合わせ 03-6825-5886
-
物件の内見、賃料確認など
(原則1時間以内に対応)
- 事務所をお探しの方
ご希望条件をご登録頂ければ
お客様にピッタリの物件をご紹介させて頂きます。










