賃貸条件
| 図面 | 募集階 | 坪数 | 賃料 @坪単価 |
共益費 @坪単価 |
敷金 | 入居 可能日 |
償却費 | 契約期間 | お気に入り | お問い合わせ |
|---|---|---|---|---|---|---|---|---|---|---|
| 保証金 | 礼金 | 更新料 | ||||||||
|
3階 | 368坪 | 未定 |
未定 |
- | 2027/4/上 |
|
|||
| - | ||||||||||
|
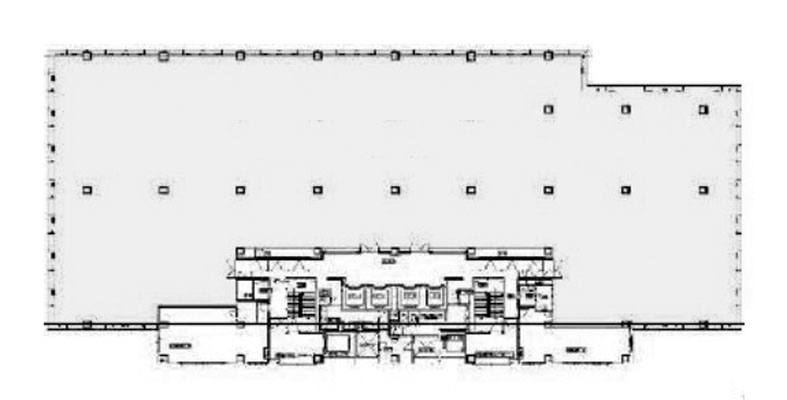
4階 | 458.7坪 | 未定 |
未定 |
- | 2027/4/上 |
|
|||
| - |
別途消費税(保証金・敷金を除く)
物件概要
| ビル名 | 六本木ヒルズゲートタワー |
|---|---|
| 住所 | 港区六本木6-11-1 |
| 構造 | S造 |
| 規模 | B2/15 |
| 竣工 | 2001/7 |
| 交通 | 大江戸線 麻布十番駅 4分 大江戸線 六本木駅 5分 日比谷線 六本木駅 5分 南北線 麻布十番駅 7分 |
設備詳細
| エレベーター | 有り |
|---|---|
| 空調 | - |
| トイレ | 男女別 |
| 警備 | - |
- お問合せ
- (株)スペースエージェント
東京都中央区銀座3-11-5 第2中山ビル6階 TEL / 03-6825-5886
宅地建物取引業免許番号 東京都知事(4)第83922号
取引形態 媒介
閉じる
- 物件を見学したい、賃料情報など
物件のお問い合わせ - お電話でのお問い合わせ 03-6825-5886
-
物件の内見、賃料確認など
(原則1時間以内に対応)
- 事務所をお探しの方
ご希望条件をご登録頂ければ
お客様にピッタリの物件をご紹介させて頂きます。



